
ママのための「あったらいいな」を集めた、
人気の「ママ’sリプラス」品質
- 家事をシェアしたり、スムーズに行える快適プランニング。
- 適材適所の豊富な収納でおうちがスッキリ保てる。
- 暮らしにゆとりをもたらすアイデア空間が満載。

働くママ目線で常に新しい住まい価値をつくり
ママの「私らしく輝ける場所」がコンセプト
ママ’sリプラスならではの
「ママ目線を大切にした」こだわり仕様
「家族のウレシイ」がいっぱいつまった家づくりです
プロが選び抜いたプランやスタイルを
あなたの好みに組み合わせる
- 好きなものを選ぶだけなので時間がかからず失敗しない。
- 自分で考えなくても理想のプランで自分らしさを表現できる。
- イメージがつきやすく、建築士に気軽に相談できる。
自由度と品質を保ちながら、価格も明確!
「広さも価格もプランも分かりやすい」
だから安心
プランタイプ、外観スタイル、内観スタイル、
それぞれお好きなものを選ぶだけで
理想の家づくりが実現します。
リプロが技術力を集結しました
安全・安心はそのままに
- 慎重を期した地盤調査と建物を支える基礎づくり。
- 永く、安全で安心して暮らすための建物構造。
- 一年を通して快適な暮らしを保つための断熱性能。

一切の妥協なく見えない所にまでこだわる!
だからこそ、永く安心して
暮らせる家ができるのです
地盤調査、基礎、構造、性能、
家が建ってからでは直接確認することができない
基本的な部分に徹底してこだわるのが、
リプロ品質の家づくりです。

2階建 提案プラン/建物本体(標準外構込)
価格2,100万円[税込]〜
- 建物31坪タイプ
- 南側
- 建物30坪タイプ
- 西側
- 建物31坪タイプ
- 北側
- 建物31坪タイプ
- 南側
- 建物30坪タイプ
- 西側
- 建物31坪タイプ
- 北側
3階建 提案プラン/建物本体(標準外構込)
価格2,265万円[税込]〜
- 建物34坪タイプ
- 南側
- 建物36坪タイプ
- 西側
- 建物32坪タイプ
- 北側
- 建物34坪タイプ
- 南側
- 建物36坪タイプ
- 西側
- 建物32坪タイプ
- 北側
▼デザインテーマ名をクリックすると画像が切り替わります
2F P040
建物面積/103.50m2(31.30坪)
間取り:3LDK 玄関方位:南側 建物本体(標準外構込)価格 2,100万円[税込]〜
concept
南側道路を想定し、玄関を南に配置した2階建て3LDKプランです。LDKは採光、通風性に優れた36.64㎡22.2帖のゆとりの広々サイズ。
スタディカウンターを腰壁を挟み2連設置しました。家事動線に配慮し、水回りを集中配置しました。
2階には専用クローゼットを設けた寝室を3室レイアウト。南面にL型のワイドバルコニーを設置。プライバシーに配慮した壁高のバルコニーです。
★掲載するプランの建物の規模、価格は目安です。
★建築建材、設定仕様、建物規模などはプランの最終決定の際に改めて建物価格を算出してご提示いたします。
★建物以外の土地条件、立地条件、建築条例 等により発生する費用は含まれていません。
南側立面図
ワイド
バルコニー全居室
クローゼット付カースペース
2台手すり付
階段システム
キッチンシステム
バスTVモニター付
インターホンフローリング
浴室暖房
乾燥機ホスクリーン
全居室
ペアガラスウォシュレット
トイレカウンター
パントリー
リネン庫
2F P039
建物面積/101.02m2(30.55坪)
間取り:3LDK 玄関方位:西側 建物本体(標準外構込)価格 2,100万円[税込]〜
concept
西側道路を想定し、玄関を西に配置した2階建3LDKプラン。LDKは採光、通風性に優れた29.19㎡ 17.7帖の広々サイズ。
水回りは東方向に伸びるホール奥の北側に集中配置しました。南に面したダイニングスペースから庭先に出入りが可能です。
2階には専用クローゼットを設けた寝室を3室レイアウト。全寝室で利用できる2つのバルコニーは南にはL型ワイドサイズ・北にはプライベートサイズを設置しました。
★掲載するプランの建物の規模、価格は目安です。
★建築建材、設定仕様、建物規模などはプランの最終決定の際に改めて建物価格を算出してご提示いたします。
★建物以外の土地条件、立地条件、建築条例 等により発生する費用は含まれていません。
西側立面図
ワイド
バルコニー全居室
クローゼット付手すり付
階段システム
キッチンシステム
バスTVモニター付
インターホンフローリング
浴室暖房
乾燥機ホスクリーン
全居室
ペアガラスウォシュレット
トイレパントリー
リネン庫
2F P038
建物面積/102.68m2(31.06坪)
間取り:3LDK 玄関方位:北側 建物本体(標準外構込)価格 2,100万円[税込]〜
concept
北側道路を想定し、玄関を北に配置した2階建3LDKプラン。LDKは採光、通風性に優れた33.33㎡ 20.2帖の広々サイズ。
水回りは玄関ホール東側に集中配置。家事動線の良い配置です。キッチンスペースには勝手口を設け、リビングスペースには室内と屋外をつなぐ広々テラスを設けました。
2階には専用クローゼットを設けた寝室を3室レイアウト。南西にはクランク形状の壁高仕様のワイドバルコニーを設けました。
★掲載するプランの建物の規模、価格は目安です。
★建築建材、設定仕様、建物規模などはプランの最終決定の際に改めて建物価格を算出してご提示いたします。
★建物以外の土地条件、立地条件、建築条例 等により発生する費用は含まれていません。
北側立面図
ワイド
バルコニー全居室
クローゼット付カースペース
2台手すり付
階段システム
キッチンシステム
バスTVモニター付
インターホンフローリング
浴室暖房
乾燥機ホスクリーン
全居室
ペアガラスウォシュレット
トイレパントリー
対面カウンター
キッチン
2F P040
建物面積/103.50m2(31.30坪)
間取り:3LDK 玄関方位:南側 建物本体(標準外構込)価格 2,100万円[税込]〜
concept
南側道路を想定し、玄関を南に配置した2階建て3LDKプランです。LDKは採光、通風性に優れた36.64㎡22.2帖のゆとりの広々サイズ。
スタディカウンターを腰壁を挟み2連設置しました。家事動線に配慮し、水回りを集中配置しました。
2階には専用クローゼットを設けた寝室を3室レイアウト。南面にL型のワイドバルコニーを設置。プライバシーに配慮した壁高のバルコニーです。
★掲載するプランの建物の規模、価格は目安です。
★建築建材、設定仕様、建物規模などはプランの最終決定の際に改めて建物価格を算出してご提示いたします。
★建物以外の土地条件、立地条件、建築条例 等により発生する費用は含まれていません。
南側立面図
ワイド
バルコニー全居室
クローゼット付カースペース
2台手すり付
階段システム
キッチンシステム
バスTVモニター付
インターホンフローリング
浴室暖房
乾燥機ホスクリーン
全居室
ペアガラスウォシュレット
トイレカウンター
パントリー
リネン庫
2F P039
建物面積/101.02m2(30.55坪)
間取り:3LDK 玄関方位:西側 建物本体(標準外構込)価格 2,100万円[税込]〜
concept
西側道路を想定し、玄関を西に配置した2階建3LDKプラン。LDKは採光、通風性に優れた29.19㎡ 17.7帖の広々サイズ。
水回りは東方向に伸びるホール奥の北側に集中配置しました。南に面したダイニングスペースから庭先に出入りが可能です。
2階には専用クローゼットを設けた寝室を3室レイアウト。全寝室で利用できる2つのバルコニーは南にはL型ワイドサイズ・北にはプライベートサイズを設置しました。
★掲載するプランの建物の規模、価格は目安です。
★建築建材、設定仕様、建物規模などはプランの最終決定の際に改めて建物価格を算出してご提示いたします。
★建物以外の土地条件、立地条件、建築条例 等により発生する費用は含まれていません。
西側立面図
ワイド
バルコニー全居室
クローゼット付手すり付
階段システム
キッチンシステム
バスTVモニター付
インターホンフローリング
浴室暖房
乾燥機ホスクリーン
全居室
ペアガラスウォシュレット
トイレパントリー
リネン庫
2F P038
建物面積/102.68m2(31.06坪)
間取り:3LDK 玄関方位:北側 建物本体(標準外構込)価格 2,100万円[税込]〜
concept
北側道路を想定し、玄関を北に配置した2階建3LDKプラン。LDKは採光、通風性に優れた33.33㎡ 20.2帖の広々サイズ。
水回りは玄関ホール東側に集中配置。家事動線の良い配置です。キッチンスペースには勝手口を設け、リビングスペースには室内と屋外をつなぐ広々テラスを設けました。
2階には専用クローゼットを設けた寝室を3室レイアウト。南西にはクランク形状の壁高仕様のワイドバルコニーを設けました。
★掲載するプランの建物の規模、価格は目安です。
★建築建材、設定仕様、建物規模などはプランの最終決定の際に改めて建物価格を算出してご提示いたします。
★建物以外の土地条件、立地条件、建築条例 等により発生する費用は含まれていません。
北側立面図
ワイド
バルコニー全居室
クローゼット付カースペース
2台手すり付
階段システム
キッチンシステム
バスTVモニター付
インターホンフローリング
浴室暖房
乾燥機ホスクリーン
全居室
ペアガラスウォシュレット
トイレパントリー
対面カウンター
キッチン
▼デザインテーマ名をクリックすると画像が切り替わります
3F P035G
建物面積/114.27m2(34.56坪) 土地面積(参考)/120.67m2(36.50坪)
間取り:4LDK+Built-in garage 玄関方位:南側 車庫面積:19.87㎡ 建物本体(標準外構込)価格 2,265万円[税込]〜
concept
南道路、南面玄関を想定した3階建3LDKガレージハウスプランです。1階にLDK29.19㎡17.7帖と水回り空間を集中配置。
2階は3寝室をシンメトリにレイアウト。ホールを含め、どの部屋からもバルコニーへの出入りが可能です。
3階は専用クローゼット付の主寝室を配置。南に面したバルコニーが利用できます。
★掲載するプランの建物の規模、価格は目安です。
★建築建材、設定仕様、建物規模などはプランの最終決定の際に改めて建物価格を算出してご提示いたします。
★建物以外の土地条件、立地条件、建築条例 等により発生する費用は含まれていません。
南側立面図
ワイド
バルコニー全居室
クローゼット付手すり付
階段システム
キッチンシステム
バスTVモニター付
インターホンフローリング
浴室暖房
乾燥機ホスクリーン
全居室
ペアガラスウォシュレット
トイレパントリー
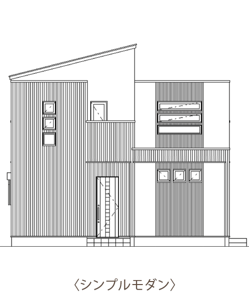
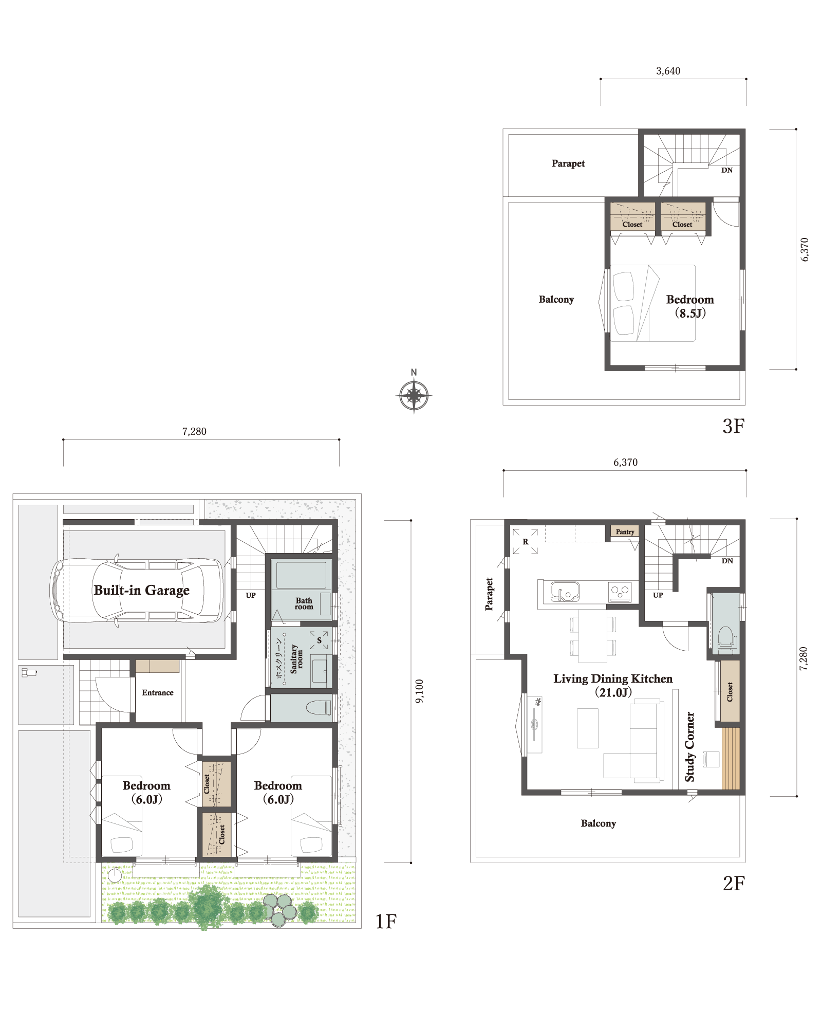
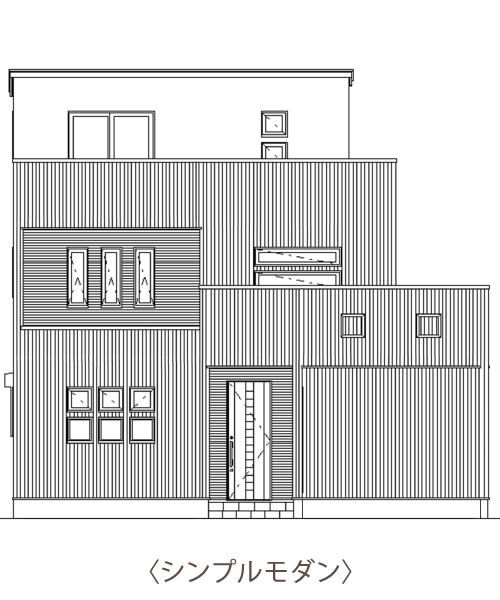
3F P034G
建物面積/119.23m2(36.06坪) 土地面積(参考)/130.87m2(39.58坪)
間取り:4LDK+Built-in garage 玄関方位:西側 車庫面積:19.87㎡ 建物本体(標準外構込)価格 2,265万円[税込]〜
concept
西道路、西面玄関を想定した3階建4LDKプラン。1階はLDK30.02㎡18.2帖と水回り空間を集中配置しました。リビングとの一体感を演出するテラスを設け、アウトドア感覚で利用できる屋外空間です。
2階は3つの寝室を設け、全室ワイドバルコーが利用可能です。3階は専用クローゼット付の主寝室を配置。
3階の大型バルコニーはホールからも出入りでき、家族で楽しめるようにプライバシーに配慮した壁高さです。
★掲載するプランの建物の規模、価格は目安です。
★建築建材、設定仕様、建物規模などはプランの最終決定の際に改めて建物価格を算出してご提示いたします。
★建物以外の土地条件、立地条件、建築条例 等により発生する費用は含まれていません。
西側立面図
ワイド
バルコニー全居室
クローゼット付カースペース
2台手すり付
階段システム
キッチンシステム
バスTVモニター付
インターホンフローリング
浴室暖房
乾燥機ホスクリーン
全居室
ペアガラスウォシュレット
トイレパントリー
リネン庫
3F P033G
建物面積/105.85m2(32.01坪) 土地面積(参考)/144.96m2(43.85坪)
間取り:3LDK+Built-in garage 玄関方位:北側 車庫面積:19.87㎡ 建物本体(標準外構込)価格 2,265万円[税込]〜
concept
北道路、北面玄関を想定した3階建3LDKプラン。1階はLDK32.50㎡19.7帖と水回り空間を集中配置しました。リビングとの一体感を演出するリビングテラスを設け、アウトドア感覚で利用できる屋外空間です。
2階は2つの寝室から利用できるワイドバルコーを設けた他、家族で利用できるサービスバルコニーを設置。
3階は、主寝室空間。スタイリッシュな外観テイストを実現するために2つのバルコニーをレイアウトしました。
★掲載するプランの建物の規模、価格は目安です。
★建築建材、設定仕様、建物規模などはプランの最終決定の際に改めて建物価格を算出してご提示いたします。
★建物以外の土地条件、立地条件、建築条例 等により発生する費用は含まれていません。
北側立面図
ワイド
バルコニー全居室
クローゼット付カースペース
2台手すり付
階段システム
キッチンシステム
バスTVモニター付
インターホンフローリング
浴室暖房
乾燥機ホスクリーン
全居室
ペアガラスウォシュレット
トイレパントリー
リネン庫
3F P035G
建物面積/114.27m2(34.56坪) 土地面積(参考)/120.67m2(36.50坪)
間取り:4LDK+Built-in garage 玄関方位:南側 車庫面積:19.87㎡ 建物本体(標準外構込)価格 2,265万円[税込]〜
concept
南道路、南面玄関を想定した3階建3LDKガレージハウスプランです。1階にLDK29.19㎡17.7帖と水回り空間を集中配置。
2階は3寝室をシンメトリにレイアウト。ホールを含め、どの部屋からもバルコニーへの出入りが可能です。
3階は専用クローゼット付の主寝室を配置。南に面したバルコニーが利用できます。
★掲載するプランの建物の規模、価格は目安です。
★建築建材、設定仕様、建物規模などはプランの最終決定の際に改めて建物価格を算出してご提示いたします。
★建物以外の土地条件、立地条件、建築条例 等により発生する費用は含まれていません。
南側立面図
ワイド
バルコニー全居室
クローゼット付手すり付
階段システム
キッチンシステム
バスTVモニター付
インターホンフローリング
浴室暖房
乾燥機ホスクリーン
全居室
ペアガラスウォシュレット
トイレパントリー
3F P034G
建物面積/119.23m2(36.06坪) 土地面積(参考)/130.87m2(39.58坪)
間取り:4LDK+Built-in garage 玄関方位:西側 車庫面積:19.87㎡ 建物本体(標準外構込)価格 2,265万円[税込]〜
concept
西道路、西面玄関を想定した3階建4LDKプラン。1階はLDK30.02㎡18.2帖と水回り空間を集中配置しました。リビングとの一体感を演出するテラスを設け、アウトドア感覚で利用できる屋外空間です。
2階は3つの寝室を設け、全室ワイドバルコーが利用可能です。3階は専用クローゼット付の主寝室を配置。
3階の大型バルコニーはホールからも出入りでき、家族で楽しめるようにプライバシーに配慮した壁高さです。
★掲載するプランの建物の規模、価格は目安です。
★建築建材、設定仕様、建物規模などはプランの最終決定の際に改めて建物価格を算出してご提示いたします。
★建物以外の土地条件、立地条件、建築条例 等により発生する費用は含まれていません。
西側立面図
ワイド
バルコニー全居室
クローゼット付カースペース
2台手すり付
階段システム
キッチンシステム
バスTVモニター付
インターホンフローリング
浴室暖房
乾燥機ホスクリーン
全居室
ペアガラスウォシュレット
トイレパントリー
リネン庫
3F P033G
建物面積/105.85m2(32.01坪) 土地面積(参考)/144.96m2(43.85坪)
間取り:3LDK+Built-in garage 玄関方位:北側 車庫面積:19.87㎡ 建物本体(標準外構込)価格 2,265万円[税込]〜
concept
北道路、北面玄関を想定した3階建3LDKプラン。1階はLDK32.50㎡19.7帖と水回り空間を集中配置しました。リビングとの一体感を演出するリビングテラスを設け、アウトドア感覚で利用できる屋外空間です。
2階は2つの寝室から利用できるワイドバルコーを設けた他、家族で利用できるサービスバルコニーを設置。
3階は、主寝室空間。スタイリッシュな外観テイストを実現するために2つのバルコニーをレイアウトしました。
★掲載するプランの建物の規模、価格は目安です。
★建築建材、設定仕様、建物規模などはプランの最終決定の際に改めて建物価格を算出してご提示いたします。
★建物以外の土地条件、立地条件、建築条例 等により発生する費用は含まれていません。
北側立面図
ワイド
バルコニー全居室
クローゼット付カースペース
2台手すり付
階段システム
キッチンシステム
バスTVモニター付
インターホンフローリング
浴室暖房
乾燥機ホスクリーン
全居室
ペアガラスウォシュレット
トイレパントリー
リネン庫
▼デザインテーマ名をクリックすると画像が切り替わります
1F P020
建物面積/87.77m2(26.55坪)
間取り:2LDK 玄関方位:南側 車庫面積:90.26㎡ 建物本体 価格 2,050万円[税込]〜
concept
南側道路を想定し、南面に玄関を設置した1階建2LDKプラン。LDK23.20帖(38.30㎡)と2つの寝室、水回り空間を北側に集中配置しました。
ダイニングとリビングスペースの間にリビングテラスを設置。屋外でティータイムが楽しめます。
カースペースは東側に縦列2台駐車を想定しました。
★掲載するプランの建物の規模、価格は目安です。
★建築建材、設定仕様、建物規模などはプランの最終決定の際に改めて建物価格を算出してご提示いたします。
★建物以外の土地条件、立地条件、建築条例 等により発生する費用は含まれていません。
★外構工事費用は含まれません。
南側立面図
全居室
クローゼット付カースペース
2台システム
キッチンシステム
バスTVモニター付
インターホンフローリング
浴室暖房
乾燥機ホスクリーン
全居室
ペアガラスウォシュレット
トイレパントリー
リネン庫
1F P019
建物面積/84.46m2(25.54坪)
間取り:2LDK 玄関方位:西側 車庫面積:85.29㎡ 建物本体 価格 2,050万円[税込]〜
concept
西側道路を想定し、西面に玄関を設置した1階建2LDKプラン。LDK20.70帖(34.16㎡)と2つの寝室、水回り設備を北側に集中配置。
ダイニングスペースから屋外に出入り可能なリビングテラスを設置。
カースペースは北側に1台駐車が可能。南に植栽がレイアウトできる庭を設けました。
★掲載するプランの建物の規模、価格は目安です。
★建築建材、設定仕様、建物規模などはプランの最終決定の際に改めて建物価格を算出してご提示いたします。
★建物以外の土地条件、立地条件、建築条例 等により発生する費用は含まれていません。
★外構工事費用は含まれません。
西側立面図
全居室
クローゼット付システム
キッチンシステム
バスTVモニター付
インターホンフローリング
浴室暖房
乾燥機ホスクリーン
全居室
ペアガラスウォシュレット
トイレパントリー
1F P018
建物面積/74.11m2(22.41坪)
間取り:2LDK 玄関方位:北側 車庫面積:76.59㎡ 建物本体 価格 2,050万円[税込]〜
concept
北側道路を想定し、北面に玄関を設置した1階建2LDKプラン。LDK18.40帖(30.43㎡)と2つの寝室、水回り設備を建物中央部に配置。
ダイニングスペースから屋外に出入り可能なリビングテラスを設置。
カースペースは北側に並列、縦列の2台駐車を想定。南に植栽がレイアウトできる庭を設けました。
★掲載するプランの建物の規模、価格は目安です。
★建築建材、設定仕様、建物規模などはプランの最終決定の際に改めて建物価格を算出してご提示いたします。
★建物以外の土地条件、立地条件、建築条例 等により発生する費用は含まれていません。
★外構工事費用は含まれません。
北側立面図
全居室
クローゼット付カースペース
2台システム
キッチンシステム
バスTVモニター付
インターホンフローリング
浴室暖房
乾燥機ホスクリーン
全居室
ペアガラスウォシュレット
トイレパントリー
ウォークイン
クローゼットリネン庫
1F P020
建物面積/87.77m2(26.55坪)
間取り:2LDK 玄関方位:南側 車庫面積:90.26㎡ 建物本体 価格 2,050万円[税込]〜
concept
南側道路を想定し、南面に玄関を設置した1階建2LDKプラン。LDK23.20帖(38.30㎡)と2つの寝室、水回り空間を北側に集中配置しました。
ダイニングとリビングスペースの間にリビングテラスを設置。屋外でティータイムが楽しめます。
カースペースは東側に縦列2台駐車を想定しました。
★掲載するプランの建物の規模、価格は目安です。
★建築建材、設定仕様、建物規模などはプランの最終決定の際に改めて建物価格を算出してご提示いたします。
★建物以外の土地条件、立地条件、建築条例 等により発生する費用は含まれていません。
★外構工事費用は含まれません。
南側立面図
全居室
クローゼット付カースペース
2台システム
キッチンシステム
バスTVモニター付
インターホンフローリング
浴室暖房
乾燥機ホスクリーン
全居室
ペアガラスウォシュレット
トイレパントリー
リネン庫
1F P019
建物面積/84.46m2(25.54坪)
間取り:2LDK 玄関方位:西側 車庫面積:85.29㎡ 建物本体 価格 2,050万円[税込]〜
concept
西側道路を想定し、西面に玄関を設置した1階建2LDKプラン。LDK20.70帖(34.16㎡)と2つの寝室、水回り設備を北側に集中配置。
ダイニングスペースから屋外に出入り可能なリビングテラスを設置。
カースペースは北側に1台駐車が可能。南に植栽がレイアウトできる庭を設けました。
★掲載するプランの建物の規模、価格は目安です。
★建築建材、設定仕様、建物規模などはプランの最終決定の際に改めて建物価格を算出してご提示いたします。
★建物以外の土地条件、立地条件、建築条例 等により発生する費用は含まれていません。
★外構工事費用は含まれません。
西側立面図
全居室
クローゼット付システム
キッチンシステム
バスTVモニター付
インターホンフローリング
浴室暖房
乾燥機ホスクリーン
全居室
ペアガラスウォシュレット
トイレパントリー
1F P018
建物面積/74.11m2(22.41坪)
間取り:2LDK 玄関方位:北側 車庫面積:76.59㎡ 建物本体 価格 2,050万円[税込]〜
concept
北側道路を想定し、北面に玄関を設置した1階建2LDKプラン。LDK18.40帖(30.43㎡)と2つの寝室、水回り設備を建物中央部に配置。
ダイニングスペースから屋外に出入り可能なリビングテラスを設置。
カースペースは北側に並列、縦列の2台駐車を想定。南に植栽がレイアウトできる庭を設けました。
★掲載するプランの建物の規模、価格は目安です。
★建築建材、設定仕様、建物規模などはプランの最終決定の際に改めて建物価格を算出してご提示いたします。
★建物以外の土地条件、立地条件、建築条例 等により発生する費用は含まれていません。
★外構工事費用は含まれません。
北側立面図
全居室
クローゼット付カースペース
2台システム
キッチンシステム
バスTVモニター付
インターホンフローリング
浴室暖房
乾燥機ホスクリーン
全居室
ペアガラスウォシュレット
トイレパントリー
ウォークイン
クローゼットリネン庫


※標準仕様以外をご希望の場合は追加費用が発生します。
- キッチン
- バスルーム
- パウダールーム
- キッチン
- バスルーム
- パウダールーム

※標準仕様以外をご希望の場合は追加費用が発生します。
- キッチン
- バスルーム
- パウダールーム
- キッチン
- バスルーム
- パウダールーム
▼画像をクリックすると拡大します。
-
埼玉県富士見市水谷 -
埼玉県富士見市水谷 -
埼玉県富士見市水谷 -
東京都江戸川区瑞江 -
埼玉県さいたま市見沼区 -
埼玉県さいたま市見沼区 -
埼玉県さいたま市見沼区大和田 -
埼玉県さいたま市見沼区大和田 -
埼玉県川口市峯
建築実例のご紹介
リビングに吹抜のある
陽ざしの家
- 敷地面積/A号棟106.60㎡・B号棟107.10㎡
- 延床面積/A号棟111.70㎡・B号棟110.10㎡
シンプルなデザインと
暮らしやすさを重視した家
- 敷地面積/101.66㎡
- 延床面積/101.23㎡
景観と調和しながらも
豊かさを確保した2棟の家
- 敷地面積/A号棟66.24㎡・B号棟66.24㎡
- 延床面積/A号棟106.19㎡・B号棟109.71㎡
多彩な暮らし方に応える家
- 敷地面積/88.15㎡
- 延床面積/93.35㎡
フォーマルフォルムの家
- 敷地面積/55.12㎡
- 延床面積/98.73㎡
街の情景を映す住まい
- 敷地面積/47.58㎡
- 延床面積/98.24㎡
ナチュラルに包まれる家
a home filled with nature
- 敷地面積/99.34㎡
- 延床面積/95.91㎡
陽だまりをつくる
吹抜けの家
- 敷地面積/110.97㎡
- 延床面積/108.47㎡
陽光の射し込む
吹抜けのある家
- 敷地面積/109.74㎡
- 延床面積/87.77㎡
陽光と風の家並み
- 敷地面積/A号棟62.65㎡・B号棟63.01㎡
- 延床面積/A号棟115.50㎡・B号棟111.78㎡
吹抜けリビング階段の邸宅
- 敷地面積/118.59㎡
- 延床面積/116.33㎡
空と風と陽だまりの
白いモダン邸宅
- 敷地面積/141.55㎡
- 延床面積/98.53㎡

理想の住まいで暮らしてほしい
あなたに、そして一緒に暮らす方にとって
「理想の住まい」とはどんな家でしょうか。
納得のいく住まいを実現してほしい。
それがリプロの想いです。
-
最先端技術で
快適な
住環境をつくる -
想いを形にする
デザイン&
コーディネート -
永く安心して暮らして
いただくための
アフターサポート
建築対応エリア
さいたま市大宮区/さいたま市中央区/さいたま市浦和区
さいたま市南区/さいたま市北区/さいたま市緑区
さいたま市桜区/さいたま市西区/さいたま市見沼区/さいたま市岩槻区
川口市/蕨市/上尾市/蓮田市/川越市/春日部市
計8行政区が主なエリアです






