新築分譲住宅 ママ’sリプラス中央区下落合2丁目 物件概要
| 所在地 | 埼玉県さいたま市中央区下落合2丁目16番5号(住居表示) |
|---|---|
| 交通 | JR京浜東北線「与野」駅徒歩9分・JR埼京線「与野本町」駅徒歩9分 |
| 総区画数 | 全1区画 |
| 地目 | 宅地 |
| 用途地域 | 準住居地域 |
| 都市計画 | 市街化区域 |
| 防火指定 | 法22条区域 |
| その他法令上の制限・その他 | 20m高度地区、景観法、さいたま市景観条例、日影規制(4h~2.5h-4m) |
| 建ペイ率 | 60% |
| 容積率 | 200% |
| 接道 | 南西側16.17m公道 |
| 設備 | 公営水道・東京電力・都市ガス・公共下水 |
| 土地権利 | 所有権 |
| 売主 |
売主:株式会社リプロ 宅地建物取引業免許/埼玉県知事(10)第11728号 公益社団法人全日本不動産協会会員 公益社団法人不動産保証協会会員 公益社団法人首都圏不動産公正取引協議会加盟 埼玉県さいたま市中央区上落合2丁目4番1号 アルーサ北与野ビル 3F TEL:048-816-4288 FAX:048-816-4289 |
| 情報提供日 | 2025/11/25 |
| 次回更新予定日 | 2025/12/12 |
| 備考 |
※図面と現況が異なる場合は現況を優先と致します。 ※掲載の建物画像は図面を元に描き起こしたもので実際とは多少異なります。
※取引条件の有効期限:2026/1/31 |
分譲住宅
| 今回販売棟数 | 1棟 |
|---|---|
| 販売価格 | 5,980万円(税込) |
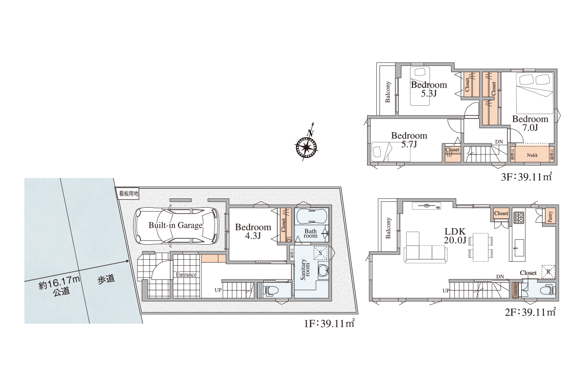
| 土地面積 | 66.05㎡ |
| 建物面積 | 110.30㎡ ※車庫部分7.03㎡除く |
| 構造 | 木造3階建 |
| 建築確認番号 | 第25UDI1S建02213号 |
| 間取り | 4LDK |
| 完成 | 2026年2月中旬完成予定 |
| 引渡し | 2026年3月初旬引渡予定 |
| 備考 | ※看板用地:北西角に0.5㎡の看板用地あり |









